Skip to content
Home
Work
Residential
Commercial
Developers
Civil Contracting
Case Studies
Our Team
Our Story
Contact
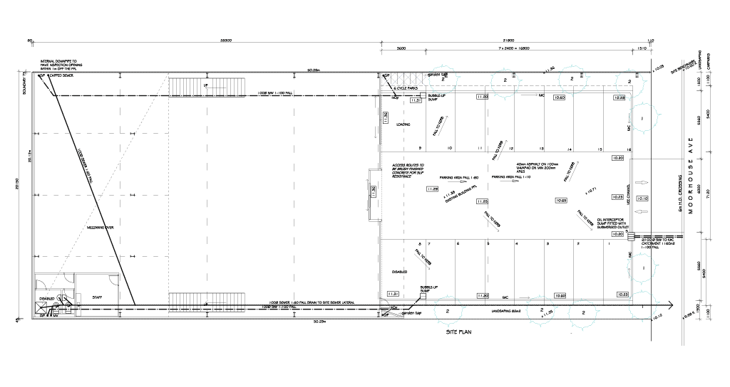
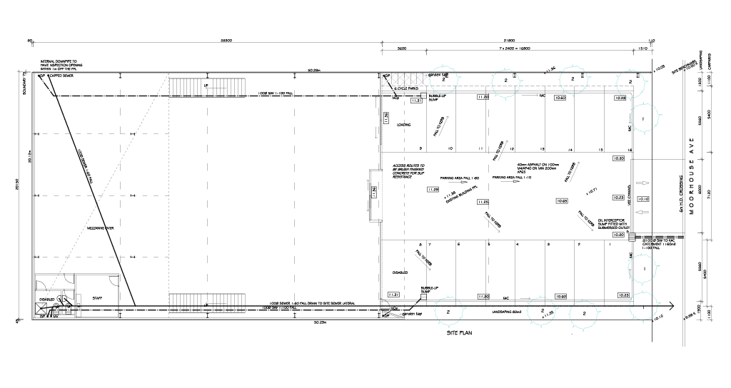
130 Moorhouse Ave
Related Projects
Fraser Place – Private Residence
221 Matsons Ave – 14 units
Totara Drive – Private Residence
Scroll to Top